Цахилгааны инженерийн хувьд салгагч, салгах унтраалга эсвэл тусгаарлах унтраалга нь цахилгаан хэлхээг үйлчилгээ, засвар үйлчилгээ хийхэд бүрэн салгах зорилгоор ашигладаг.Эдгээрийг зөвхөн хэлхээг таслахад ашигладаг бөгөөд ихэвчлэн цахилгаан түгээх станц, дэд станцад байдаг бөгөөд машиныг тохируулах, засахын тулд жолоодлогын эх үүсвэрийг зайлуулах шаардлагатай байдаг.Салгагч нь гар болон мотортой байж болох ба тоног төхөөрөмж болон түүн дээр ажиллаж байгаа ажилтнуудын аюулгүй байдлыг хангах үүднээс системээс тусгаарлагдсан хэсгийг газардуулах зориулалттай газардуулгын унтраалгатай хослуулж болно. Өндөр хүчдэлийн тусгаарлах унтраалга нь цахилгаан дэд станцуудад ашиглагддаг. таслуур, трансформатор, дамжуулах шугам гэх мэт төхөөрөмжийг засвар үйлчилгээ хийхэд тусгаарлахыг зөвшөөрнө.Салгагч нь ихэвчлэн хэлхээний хэвийн удирдлагад зориулагдаагүй, зөвхөн аюулгүй байдлын тусгаарлалтанд зориулагдсан байдаг.Ачааллын унтраалга ба таслуураас ялгаатай нь салгагч нь цахилгаан нумыг дарах механизмгүй байдаг бөгөөд энэ нь өндөр гүйдэл дамжуулагч дамжуулагчийг цахилгаан тасалдуулах үед үүсдэг.Иймээс тэдгээр нь гүйдэл нь бусад хяналтын төхөөрөмжөөр таслагдсаны дараа л нээгдэх зориулалттай, маш бага таслах хүчин чадалтай, ачаалалгүй төхөөрөмж юм.
| Боломжийн байдал: | |
|---|---|
RH-B-33
Дүгнэлт
Гадна AC Gang тусгаарлагч унтраалга 11КВ/400А-33КВ/600А 3 фазын хувьсах гүйдлийн 50/60 Гц цахилгаан хэлхээнд ачаалалгүй хүчдэлд асаах, унтраах байдлаар ашиглагддаг.Энэ нь IEC стандартад хамаарна.IEC60964: 1996, IEC62271-102:2002
Техникийн тодорхойлолт
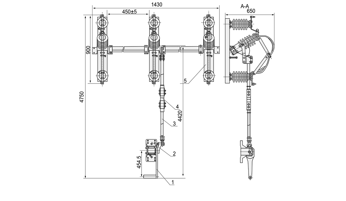
Тойм хэмжээ
Дүгнэлт
Гадна AC Gang тусгаарлагч унтраалга 11КВ/400А-33КВ/600А 3 фазын хувьсах гүйдлийн 50/60 Гц цахилгаан хэлхээнд ачаалалгүй хүчдэлд асаах, унтраах байдлаар ашиглагддаг.Энэ нь IEC стандартад хамаарна.IEC60964: 1996, IEC62271-102:2002
Техникийн тодорхойлолт
Тойм хэмжээ
Хөнгөн цагааны силикатаас бүрдэх керамик тусгаарлагч нь цахилгаан дамжуулах, түгээх агаарын шугамын чухал бүрэлдэхүүн хэсэг юм. Тэдний урт хугацааны найдвартай байдал нь хүрээлэн буй орчны хүчин зүйлсээс шалтгаалж, гүйцэтгэлийн доройтолд хүргэдэг. Энэхүү нийтлэлд хэт ягаан туяаны цацраг болон бохирдлын хуримтлалд анхаарлаа хандуулан керамик тусгаарлагчийн хөгшрөлтийн үндсэн механизмд дүн шинжилгээ хийсэн. Энэ нь эдгээр нөлөөллийг багасгах, улмаар үйлчилгээний хугацааг уртасгах, сүлжээний уян хатан чанарыг хангах зорилготой функциональ бүрэх технологийн хамгийн сүүлийн үеийн дэвшлийг судлах болно.
Хэдэн арван жилийн турш хүчдэл сааруулагчийн үндсэн зорилго нь тогтмол хэвээр байсаар ирсэн: цахилгаан тоног төхөөрөмжийг аянга буух эсвэл сэлгэн залгах үйлдлээс шалтгаалсан түр зуурын хэт хүчдэлээс хамгаалах, газар руу бага эсэргүүцэлтэй зам тавьж, системийн хэвийн ажиллагааг хурдан сэргээх. Гэсэн хэдий ч энэ эрхэм зорилгод хүрэх арга замууд эрс өөрчлөлтийг хийж байна. Орчин үеийн эрчим хүчний сүлжээнүүдийн эрэлт хэрэгцээ буюу сэргээгдэх эрчим хүчний интеграцчлал, дижиталжуулалт, илүү найдвартай байдлын хэрэгцээ шаардлагад тулгуурлан баривчлах технологи нь уламжлалт, идэвхгүй үүргээсээ хальж ухаалаг, дасан зохицох чадвартай, өндөр уян хатан бүрэлдэхүүн хэсгүүдийн эрин үе рүү шилжиж байна.
Тусгаарлагч унтраалга, мөн салгах унтраалга эсвэл тусгаарлагч гэж нэрлэдэг бөгөөд цахилгаан эрчим хүчний системийн үндсэн бүрэлдэхүүн хэсэг юм. Тэдний гол үүрэг бол тусгаарлах үзэгдэх цэгийг бий болгох, доод урсгалын тоног төхөөрөмжийн аюулгүй засвар үйлчилгээ, засвар үйлчилгээ юм. Хэлхээ таслагчаас ялгаатай нь тэдгээр нь ачааллын гүйдэл эсвэл гэмтлийн гүйдлийг таслах зориулалттай биш юм. Гэсэн хэдий ч тэдгээрийн найдвартай ажиллагаа буюу тушаалаар нээх, хаах нь системийн аюулгүй байдал, уян хатан байдал, хүртээмжтэй байдалд чухал ач холбогдолтой.
Гал хамгаалагч нь чухал боловч ихэнхдээ үл тоомсорлодог идэвхгүй хамгаалалтын хэрэгсэл нь цахилгааны аюулгүй байдлын үндэс юм. Тэдний найдвартай ажиллагаа нь тусгаарлагч гадаргуу болон хайлдаг элементийн бүрэн бүтэн байдлаас хамаардаг. Энэ нийтлэлд гадаргын бохирдол болон дотоод хөгшрөлт / доройтол гэсэн хоёр түгээмэл эвдрэлийн горимыг авч үзэх болно. Бид механизмд техникийн нарийвчилсан дүн шинжилгээ хийж, дэвшилтэт болон практик таних арга техникийг тоймлон гаргаж, системийн найдвартай байдлыг нэмэгдүүлэх, гэнэтийн зогсолтоос урьдчилан сэргийлэхийн тулд системчилсэн засвар үйлчилгээний протоколыг зааж өгдөг.
Ухаалаг сүлжээ рүү дэлхий даяар шилжиж байгаа нь бидний цахилгаан эрчим хүч үйлдвэрлэх, түгээх, хэрэглэх үндсэн өөрчлөлтийг харуулж байна. Хоёр чиглэлтэй эрчим хүчний урсгал, нар, салхи гэх мэт тархсан эрчим хүчний нөөцийг (DER) гүн гүнзгий нэгтгэх, хэмжилтийн дэвшилтэт дэд бүтэц (AMI), бодит цагийн өгөгдлийн аналитик зэргээр тодорхойлогддог ухаалаг сүлжээнүүд нь шинэ үеийн хамгаалалтын төхөөрөмжүүдийг шаарддаг. Эдгээрийн дунд зуун гаруй жилийн турш цахилгааны хамгаалалтын тулгын чулуу болсон энгийн гал хамгаалагч нь технологийн гүн гүнзгий өөрчлөлтийг хийж байна. Гал хамгаалагчийн технологийн ирээдүй нь энгийн, золиослолын чанартай хамгаалалтын бүрэлдэхүүн хэсгээс ухаалаг, дасан зохицох чадвартай, датагаар баялаг сүлжээ болгон хувиргахад оршино.
Хэдэн арван жилийн турш хүчдэл сааруулагчийн үндсэн зорилго нь тогтмол хэвээр байсаар ирсэн: цахилгаан тоног төхөөрөмжийг аянга буух эсвэл сэлгэн залгах үйлдлээс шалтгаалсан түр зуурын хэт хүчдэлээс хамгаалах, газар руу бага эсэргүүцэлтэй зам тавьж, системийн хэвийн ажиллагааг хурдан сэргээх. Гэсэн хэдий ч энэ эрхэм зорилгод хүрэх арга замууд эрс өөрчлөлтийг хийж байна. Орчин үеийн эрчим хүчний сүлжээнүүдийн эрэлт хэрэгцээ буюу сэргээгдэх эрчим хүчний интеграцчлал, дижиталжуулалт, илүү найдвартай байдлын хэрэгцээ шаардлагад тулгуурлан баривчлах технологи нь уламжлалт, идэвхгүй үүргээсээ хальж ухаалаг, дасан зохицох чадвартай, өндөр уян хатан бүрэлдэхүүн хэсгүүдийн эрин үе рүү шилжиж байна.
Түгээх шугамын урсгалыг баривчлах (DLSAS) ХЯНАЛТЫН ТУСГАЙ ХЯНАЛТЫН ТУСГАЙ ТӨЛӨВЛӨГӨӨНИЙ ҮЙЛ АЖИЛЛАГААНЫ ТӨЛӨВЛӨГӨӨГҮЙ, 1 КВ ба 38 кВ ба 38 кВ-ийн хооронд ажилладаг. Тэдний үндсэн үүрэг бол цахилгаан хэрэгслийн цохилт, шилжилтийг Аянга, шилжүүлэх, шилжүүлэх, бусад цахилгаан садар самуунд хүргэдэг.
Магтер, Орост: Буцах 2-р сарын 2-р сарын 6-р хэсгаас 6-р сарын 2-р хэсээс 4NL сарын 400-ээс 625 он, Rainiance тоног төхөөрөмжийн хувцасны үл үзэгдэх тоног төхөөрөмжийн үзийг Органик цайт тоног төхөөрөмж дээр амжилттай оролцуулна.
Унуу гал хамгаалагч тайрах нь хэт их хамгаалалт, тусгаарлалтыг өгдөг. Гэсэн хэдий ч хүрээлэн буй орчны, цахилгаан, механик стресс, механик стрессд өртөхөд хүргэдэг. Энэ нийтлэл нь Ачаа хөгшрөлтийн анхан шатны механизмыг шалгаж, үр дүнтэй, засвар үйлчилгээ хийх, системийн аюулгүй байдлыг хангах, системийн аюулгүй байдлыг хангах.
Гадаа өндөр хүчдэлийн залгуур ба залгуур системүүд (ихэвчлэн 1KV-ээс 52 кВт) аюулгүй, найдвартай, найдвартай инженерийн шийдлийг хайж олоход зориулагдсан. Эдгээр салгах холболтууд нь тусламжийн сүлжээ, үйлдвэрлэлийн суулгац, сэргээгдэх эрчим хүчний програм хангамжийг хадгалахын тулд уян хатан хүчийг идэвхжүүлдэг. Бага хүчдэлтэй харьцуулахад хязгаараас ялгаатай нь HV холбогчуудаас ялгаатай, HV холбогч нь цахилгаан талбайн хяналтын хяналтын хяналтын хяналтын чиглэл, дулаалга, байгаль орчинд болгоомжтой хандахыг шаарддаг.
И-мэйл:jonsonchai@chinahaivo.com
Wechat: +86 135877716869
Whatsapp: +86 135877716869
Тел: 0086-577-62836929
0086-577-628836666
0086-135877716869
0086-1595772011